Stay
宿泊
和室特別室日の出の間





客室詳細情報
2階の角部屋、 お部屋からは太平洋からの日の出・犬吠埼灯台がご覧いただける、眺めが自慢のお部屋です。 温泉をひいた専用の内風呂は、展望風呂となっており、海を眺めながらゆっくりとプライベートな時間を過ごしていただくことができます。
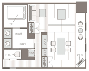
12畳と6畳の和室+リビングのゆったりとしたつくりで、入り口から各部屋及びバスルーム、トイレまで、全てフラットなバリアフリー対応。(リビングに簡易ベッドの設置が可能です)

| 間取り | 10畳和室、6畳和室 |
|---|---|
| 客室設備 | バス、トイレ、洗面台、テレビ、ハンガー、布団(原則としてご夕食中にお敷きいたします) |
| アメニティ | タオル、歯ブラシ、ハンディソープ ※ 大浴場には、シャンプー、リンス、ボディシャンプー、カミソリ、シャワーキャップ・ドライヤー、くし化粧水、メイク落とし等をご用意してます。 |
